| 賃料 | 35.0万円(税込) |
|---|---|
| 敷金 / 礼金 | 2ヶ月分/ 2ヶ月分 |
| 所在地 / 交通 | 京都市下京区新町通正面下る平野町786番1 ・JR西日本 京都駅 徒歩約9分 ・地下鉄烏丸線 五条駅 徒歩約9分 |
| 用途 | 事業用 |
京都駅北側、東本願寺裏に佇む町家テナント。
京都駅の北側に位置し、東本願寺のすぐ裏手にある町家物件です。周辺は住居と店舗が混在するエリアで、今も数多くの町家が残り、京都らしい風情を感じられる地域です。少し足を延ばせば西本願寺やその他の寺社も点在し、散策するだけで京都の歴史と文化に触れることができます。
京都駅まで徒歩圏内とアクセスも良好。周辺にはカフェやレストランなど飲食店が充実しており、日常の買い物にも便利なロケーションです。




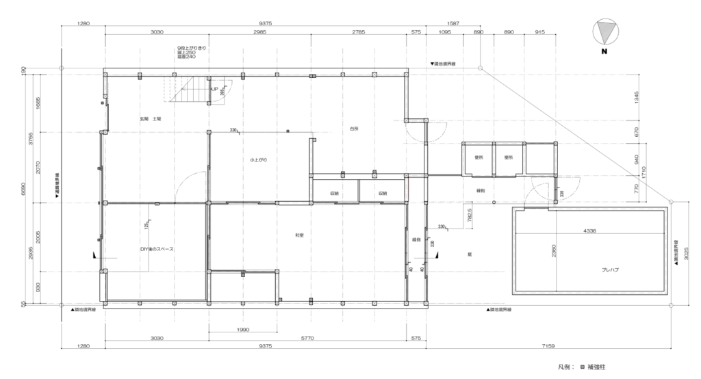
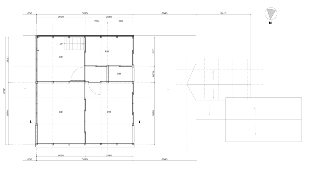
建物は約36坪の広さがあり、1階・2階を活かした使い勝手の良い間取り。落ち着いた雰囲気を活かして、喫茶店や和を感じるレストラン、物販店舗のほか、民泊やシェアスペースなど多彩な用途にご活用いただけます。
京都駅エリアの集客力と、町家ならではの趣を兼ね備えた希少物件。手を入れる必要がありますが、ぜひこの立地の魅力を存分に活かしたお店づくりにご検討ください。


| 賃料 | 35.0万円 |
|---|---|
| 敷金 / 礼金 | 2ヶ月分/ 2ヶ月分 |
| 所在地 | 京都市下京区新町通正面下る平野町786番1 |
| 交通 | JR西日本 京都駅 徒歩約9分 地下鉄烏丸線 五条駅 徒歩約9分 |
| 用途 | 事業用 |
| 建物種類 | 貸家 |
| 契約 / 期間 | 定期借家 / 10年 |
| 間取り | ー |
| 専有面積 | 【現況】延床面積:119.75㎡(1階:79.51㎡ / 2階:40.24㎡) 【公簿】延床面積:85.61 ㎡(1階:63.47 ㎡ / 2階:22.14 ㎡) |
| 用途地域 | 近隣商業地域 |
| 設備 | ー |
| リフォーム履歴 | ー |
| 建物構造 | 木造2階建 |
| 築年月 | 不詳 |
| 引渡し / 現況 | 即日 / 空家 |
| 備考 | ※現状有姿での取引とします。雨漏り等の修繕は借主負担です。 ※保証会社の保証および集金代行システム加入要。保証料は審査内容により異なります。引落手数料として330円が掛かります。 ※借家人賠償責任保険の加入が必要です。 ※町内会へのご加入をお願いします。 ※宿泊業可 ※防火・準防火地域:準防火地域 ※景観保全:歴史遺産型美観地区本願寺・東寺界わい景観整備地区 ※眺望景観:(1)東山三十六峰を望む眺望景観創生地区(15m)、(2)東寺五重塔眺望保全地区(31m)、(3)東寺大師堂眺望保全地区(15m)、(4)東寺金堂眺望保全地区(31m) ※屋外広告物:歴史遺産型第2種地域 ※その他:都市景観形成地域、西高瀬川水域に係る災害危険特別警戒区域、京都市条例に基づく指定地区(既存集落地区、宅地造成工事規制区域) |




































募集を終了した物件です。アーカイブとしてお楽しみください。

