| 所在地 | 京都府京都市中京区壬生東高田町25番地11 |
| 交 通 | 阪急京都本線 西院駅 徒歩約8分 |
| 家 賃 | 18.0万円(居住兼事業用:19.8万円) |
| 礼 金 | 賃料1ヶ月分 |
| 敷 金 | 賃料2ヶ月分 |
| 用 途 | 居住兼事業用 |
阪急京都本線 西院駅、JR西日本 丹波口駅と路線の異なる2つの駅まで徒歩圏内とアクセスも良好。JR丹波口駅からは京都駅へのアクセスが便利、阪急京都本線 西院駅からは河原町など京都の繁華街・ビジネス街へ10分程度でアクセス可能です。
周辺にはスーパーなど店舗が充実しており、日常の買い物にも便利なロケーションの物件です。
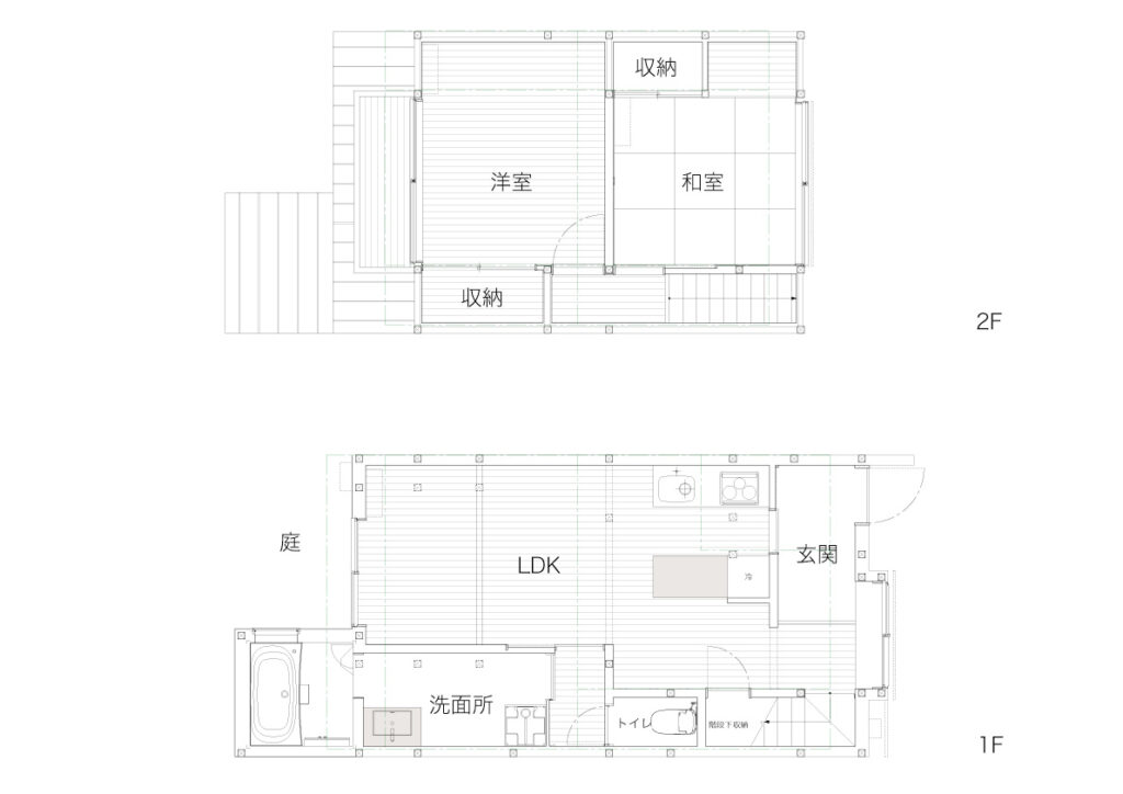
間取り図
2025年10月に内装や床暖房、バス・キッチンを新調し改装済み。
自宅兼オフィスや2拠点生活用のセカンドハウスとしても最適な2LDKの間取りが魅力です。

物件写真








































| 面 積 | 65.69㎡(1階 39.84㎡・2階 25.85㎡) |
| 間取り | 2LDK |
| 契約 | 定期借家契約 |
| 契約期間 | 3年 |
| 構造・工法 | 木造 |
| 築年数 | 大正6年(増築昭和45年) |
| 設 備 | 1F(LDK・洗面室 床暖房) |
| 改装履歴 | 2025年10⽉貸主により改装済 ・水回り新調(キッチン3口IHリフォーム、トイレ、洗面収納付き3面鏡、1616サイズ窓付き浴室リフォーム) ・床の張替(タイル、フローリング) ・内装全室:天井、壁面、建具全取換 ・外部サッシ取換、ペアガラス仕様 ・空調全室新設 ・地デジアンテナ設置済 ・奥庭和風庭園 ・玄関扉新設 |
| 引渡し / 現状 | 即時/空家 |
| 備考 / 特記事項 | ※賃貸保証会社・火災保険加入要 |
取引態様:仲介(※契約時に仲介手数料が必要です。)
取扱企業:株式会社一丁目一番地
住所:〒600-8490 京都府京都市下京区立中町508 中川フジカメラビル5階
TEL:050-1754-4616
免許番号:京都府知事免許(1)第18425号
所属団体:(公社)京都府宅地建物取引業協会会員、(公社)近畿地区不動産公正取引協議会加盟
最終更新日:11月30日
更新予定日:12月15日
いただきました個人情報につきましては、本物件を取り扱っている株式会社一丁目一番地へと転送されます。この過程において、株式会社一丁目一番地で保管された個人情報については【個人情報の取り扱い】 をご参照ください。

