| 所在地 | 京都府京都市上京区東竪町114-1 |
| 交 通 | 京福 北野白梅町 徒歩8分 JR 円町 徒歩18分 |
| 家 賃 | 33.0万円 |
| 敷金・礼金 | なし / 1ヶ月 |
| 保証金 | 3ヶ月 |
| 用 途 | 事業用 |
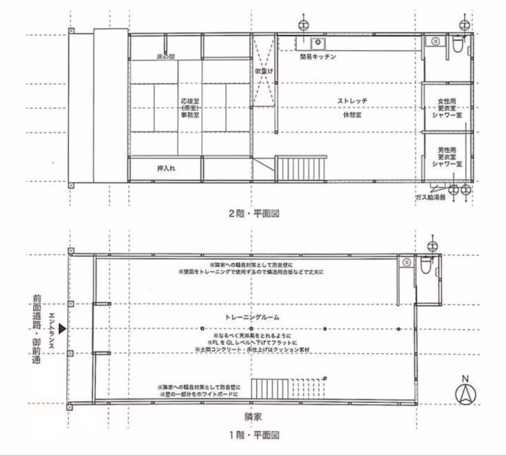
| 面 積 | 160.00㎡ |
| 間取り | ー |
| 契約 | 普通借家契約 |
| 契約期間 | 3年 |
| 用途地域 | 該当なし |
| 構造・工法 | 木造 |
| 築年数 |
1945年01月 |
| 設 備 | 給湯、都市ガス、飲食可、居抜き |
| リフォーム履歴 | ー |
| 引渡し / 現状 | 即時/空家 |
| 備考 / 特記事項 | ・フリーレント1ヶ月 ・保証金償却2ヶ月、更新料1ヶ月 |







取引態様:仲介(※契約時に仲介手数料が必要です。)
取扱企業:株式会社一丁目一番地
住所:〒600-8490 京都府京都市下京区立中町508 中川フジカメラビル5階
TEL:050-1754-4616
免許番号:京都府知事免許(1)第18425号
所属団体:(公社)京都府宅地建物取引業協会会員、(公社)近畿地区不動産公正取引協議会加盟
最終更新日:11月30日
更新予定日:12月15日
いただきました個人情報につきましては、本物件を取り扱っている株式会社一丁目一番地へと転送されます。この過程において、株式会社一丁目一番地で保管された個人情報については【個人情報の取り扱い】 をご参照ください。

