| 所在地 | 京都府京都市上京区寺之内通小川西入宝鏡院東町579 |
| 交 通 | 京都市営地下鉄烏丸線 今出川 徒歩11分 |
| 家 賃 | 22.00万円 |
| 敷金・礼金 | 22.00万円 / 22.00万円 |
| 保証金 | なし |
| 用 途 | 店舗 |
| 面 積 | 118.20㎡ |
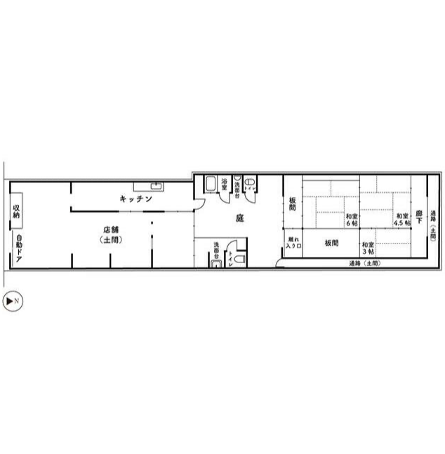
| 間取り | ー |
| 契約 | 定期借家契約 |
| 契約期間 | 10年 |
| 用途地域 | ー |
| 構造・工法 | 木造1階建 |
| 築年数 | 1950年1月 |
| 設 備 | B・T別,トイレ2ヶ所,収納スペース |
| リフォーム履歴 | 2025年3月:屋根葺き替え・構造一部補修 |
| 引渡し / 現状 | 即時/空 |
| 備考 / 特記事項 | ※貸主は適格請求書発行事業者ではありません。 ※町内会へのご加入をお願いします。 ※2025年3月 屋根葺き替え、構造一部補修 ※改装可(要相談) ※重飲食、ゲストハウス(要相談) ※築不詳 保険等:要 賃貸保証:加入要 ※保証会社の保証および集金代行システム加入要。保証料は審査内容により異なります。引落手数料として330円が掛かります。 |
















取引態様:仲介(※契約時に仲介手数料が必要です。)
取扱企業:株式会社一丁目一番地
住所:〒600-8490 京都府京都市下京区立中町508 中川フジカメラビル5階
TEL:050-1754-4616
免許番号:京都府知事免許(1)第18425号
所属団体:(公社)京都府宅地建物取引業協会会員、(公社)近畿地区不動産公正取引協議会加盟
最終更新日:4月19日
更新予定日:5月15日
いただきました個人情報につきましては、本物件を取り扱っている株式会社一丁目一番地へと転送されます。この過程において、株式会社一丁目一番地で保管された個人情報については【個人情報の取り扱い】 をご参照ください。

