| 所在地 | 京都府京都市北区小山西大野町51 |
| 交 通 | 京都市営地下鉄烏丸線 北大路 徒歩9分 京都市営地下鉄烏丸線 鞍馬口 徒歩14分 |
| 家 賃 | 27.50万円 |
| 敷金・礼金 | なし / なし |
| 保証金 | 3ヶ月 |
| 用 途 | 店舗・事務所 |
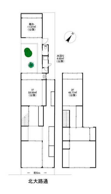
| 面 積 | 122.52㎡ |
| 間取り | ー |
| 契約 | 定期借家契約 |
| 契約期間 | 10年 |
| 用途地域 | 近隣商業 |
| 構造・工法 | 木造2階建 |
| 築年数 | 1900年01月 |
| 設 備 | B・T別,専有部分にトイレあり |
| リフォーム履歴 | ー |
| 引渡し / 現状 | 即時/空 |
| 備考 / 特記事項 | 築年数不詳 定期借家10年 再契約料:賃料1ヶ月分(税別) 再契約事務手数料:10万円(税別) 火災保険:加入必須 保証会社:加入必須【初回保証料:月額総賃料1ヶ月〜1.5ヶ月分(税込)、年間保証委託料:無又は月額総賃料の10%】 保証金返還率:3年未満30%、3年以上5年未満50%、5年以上80% 保険等:要 賃貸保証:加入要 初回保証料:月額総賃料1ヶ月〜1.5ヶ月分(税込)、年間保証委託料:無又は月額総賃料の10% |















取引態様:仲介(※契約時に仲介手数料が必要です。)
取扱企業:株式会社一丁目一番地
住所:〒600-8490 京都府京都市下京区立中町508 中川フジカメラビル5階
TEL:050-1754-4616
免許番号:京都府知事免許(1)第18425号
所属団体:(公社)京都府宅地建物取引業協会会員、(公社)近畿地区不動産公正取引協議会加盟
最終更新日:4月19日
更新予定日:5月15日
いただきました個人情報につきましては、本物件を取り扱っている株式会社一丁目一番地へと転送されます。この過程において、株式会社一丁目一番地で保管された個人情報については【個人情報の取り扱い】 をご参照ください。

